Skip to content

Wyre Forest District Council (Off Street Parking Places) Order 2023 (no 2)

Notice of proposals

28 March 2024

Notice is hereby given that the Wyre Forest District Council (‘the Council’) in exercise of its powers under section 32 of the Road Traffic Regulation Act 1984 and of all other enabling powers proposes to make the above Order. The effect of the Order shall be:

  1. To revoke the current Order and reinstate those provisions save for the amendments proposed;
  1. To reduce the area of the Market Street Short Stay Surface Vehicle Park, Kidderminster by removing 14 parking spaces and amend the boundary to reflect the reduced area.

A copy of the Order, plans showing the land affected and a statement of the Council’s reasons for making the Order can be inspected between 09:00 and 16:30 Monday to Friday at Wyre Forest House, Kidderminster and The Hub at Green Street, Kidderminster, and on the Council’s website.  If you wish to object to this Order, the objection together with the grounds for making it must be made in writing to the Solicitor to the Council, Wyre Forest District Council, Wyre Forest House, Finepoint Way, Kidderminster, DY11 7WF not later than 4pm on 17 April 2024.

 

CS Newlands

Solicitor to the Council

Dated the 28 March 2024

 

Statement of Reasons

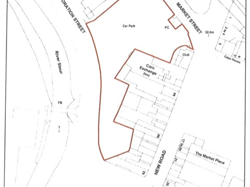
  1. For the purpose of this Statement of Reasons references to ‘the Land’ shall be to the land outlined in red on Plan B.
  2. On 13 October 2021 the Cabinet made the following decision in  respect of the redevelopment of land at Market Street, Kidderminster:
  3. “To agree the proposed land swap of land in the ownership of the Council and in the ownership of the Kidderminster College to facilitate land assembly for regeneration purposes of vacant sites at 1 & 2  Market Place, and associated re-modelling of the College frontage and to delegate to the Corporate Director: Economic Prosperity & Place authority to advertise the removal of part of the Market Street Car Park in the Wyre Forest (Off-Street Parking Places) Order; and in consultation with the Cabinet Member for Operational Services to consider any objections made as a result of the advertisement; and, following such consideration, to decide whether part of the car park should be removed from the Parking Places Order”.
  4. The reasons for the proposed removal of the Land from the Parking Places Order are as follows:
    1. To facilitate the land assembly for regeneration purposes of vacant sites at 1 & 2  Market Place, and associated re-modelling of the College frontage.
    2. At present there are 84 spaces in the Market Street Short Stay Car Park. The facilitation of the above arrangement will result in a loss of 14 existing parking spaces (current 8 disabled and 6 standard).
    3. However, reconfiguration of 10 existing/retained WFDC spaces, which currently amount to 6 standard and 4 disabled spaces and an area outside of the land transfer, which includes an additional area for reprovision due to removal of access is proposed. This will allow for space reconfiguration and will result in 6 additional disabled spaces (i.e. 2 new disabled spaces) and 4 standard spaces. As a result of this the net loss of parking spaces will still be 14 parking spaces lost, however, the net loss of disabled spaces will be only 6.
    4. A survey of the usage of the car park commissioned in 2018 demonstrates that the car park is consistently under occupied.
    5. A more up to date analysis of the usage of Market Street car park undertaken using data taken from the ticket machines at the car park for the period April 2019 to March 2020 (thus before the impact of the pandemic) confirms that the car park still remains consistently under occupied.
    6. The significance of this continuing sub optimal usage means that even with the proposed reduction of the number of parking spaces by 14 there would remain enough vacant spaces to satisfy user demand.
  5. Plan A shows the current area of Market Street Short Stay Surface Vehicle Park, Kidderminster and Plan C shows the amended plan to be included in the order.
Website feedback
Was this page useful? Required
Yes, I give permission to store and process my data
We will only contact you regarding this feedback.
Back to top